用户名:   密码:          
忘记密码?点击找回!
  English
新闻
  2015年
  2014年
  2013年
 
您的位置:首页>>新闻>>2015年
万科集团创展中心 VANKE Exhibition Center 
文章来源:dada 浏览1294次 添加时间:2015-01-23 10:31:06

万科集团创展中心

VANKE Exhibition Center

钟华颖 南京大学建筑与城市规划学院


业主:万科集团万创设计管理部&建筑研究中心

项目地点:东莞市松山湖万科住宅产业化研究基地

建筑设计单位:南京大学建筑规划设计研究院有限公司

建筑设计:钟华颖,李辉

结构设计单位:ARUP奥雅纳工程咨询(上海)有限公司

结构设计:MartinSimpson,刘刚,逄靖华,陈智力,孙鹏

建筑面积:6860平方米

设计时间:2012

建设时间:2012-2013


自由曲面作为一种造型手段应用于建筑设计,由于非标准的构件加工造价高昂,往往被认为仅适用于一部分预算限制宽松的重要标准性建筑。在造价有限,预算控制严格的一般性大型建筑设计中如何合理地应用非标准曲面造型,万科集团创展中心设计进行了一次尝试。通过一系列合理的设计技术措施结合工业化加工手段,最终实现了这座低造价非标准形态建筑。

创展中心位于东莞松山湖万科集团住宅产业化研究基地内,是万科集团住宅建筑设计,住宅精装修研发与展示的基地。内部要求十四米柱跨的

通用空间。用地北部为已建研究厂房,南侧为基地边界的自然土坡。结合内部空间要求和外部环境,创展中心由十四米柱跨的方盒子开始,将屋顶及东侧、南侧墙体撕裂,扭转,形成光线和空气进入建筑的通道。扭转的墙体虚实相间,分别转化为封闭的曲面钢幕墙和扭曲的钢格栅。支撑斜柱隐藏在曲面幕墙以内,钢格栅在增强通风效果的同时也作为遮阳构件。两者虚实相间形成的丰富形体,与南侧自然地形相呼应。为了实现这一设计构思,从几何形态、参数化设计技术、构造节点等方面提出了相应的措施。

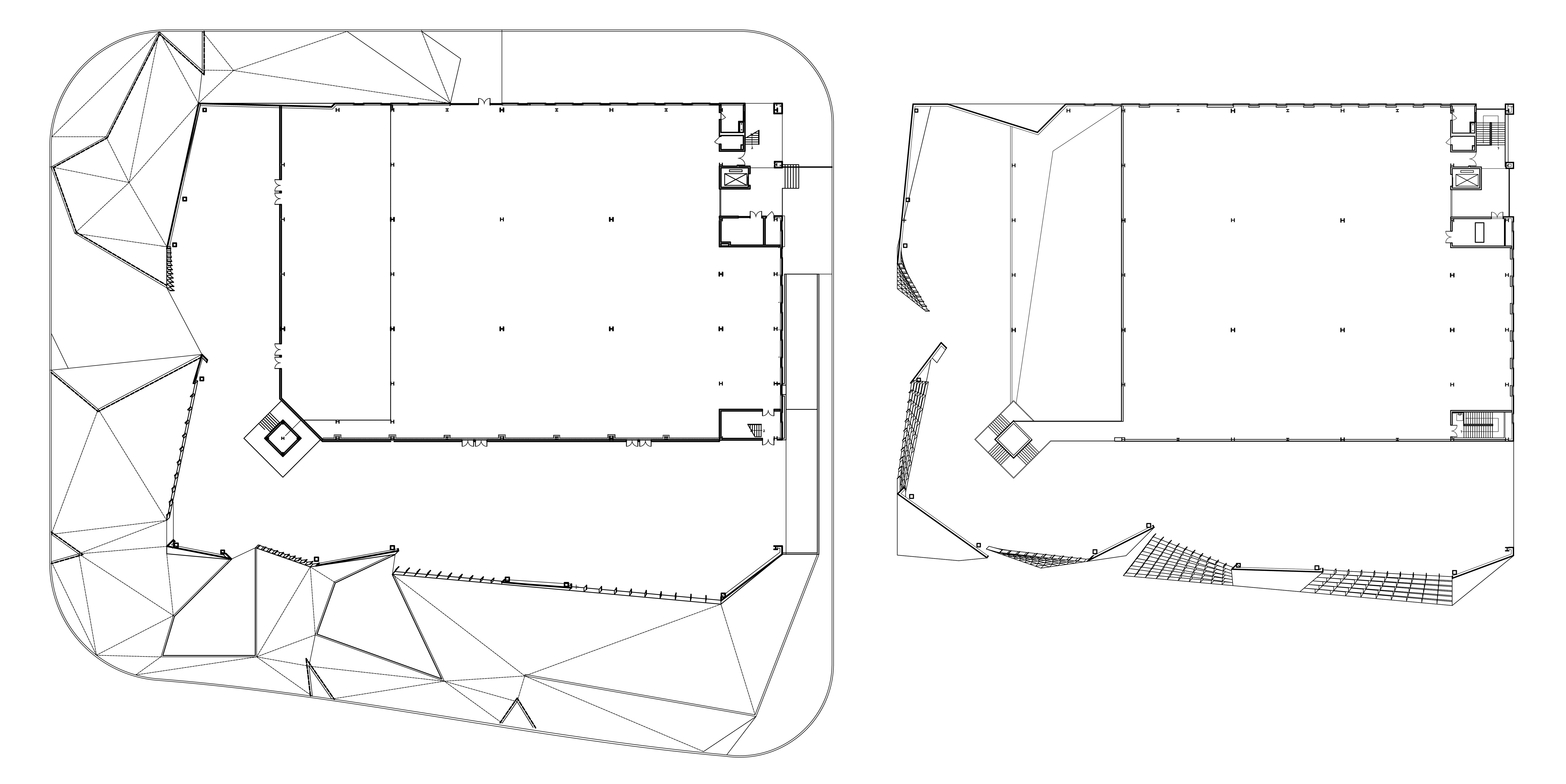
1 总平面

a)一层平面 b)二层平面

2 平面

a)南立面 b)西立面

3 立面

适应加工条件的几何选型

非标准构件的几何形体如果在三维方向同时变化,需要进行三维数控加工,造价高昂。如果将非标准构件的形状变化限定在二维平面内,则造价将大幅降低。走访本地加工厂发现,很多常规的直线形构件也采用数控加工,数控加工技术的普及为设计实现提供了现实基础。加工费用,以数控切割机为例,加工平面内的曲线形构件与加工直线形构件,单位时间的加工费相同,不同之处在于材料的利用率。根据这一加工条件,创展中心将构件形状变化限制在二维平面内,同时利用合理的几何选型,将构件进一步简化为直线性构件,提高材料利用率,降低总体造价。在多种自由曲面类型中,满足这一要求的是由空间中不共面的两条直线定义的规则曲面。沿两条边等分线的连线均为直线。这一特性方便了后期加工,建造过程中的定位也比较方便。规则曲面的弱点在于形态变化不够丰富,因此创展中心采用多组规则曲面的组合,构成丰富的形态变化。

4 规则曲面几何特性


参数化构件生成

根据规则曲面的几何特性,编写了曲面格栅和曲面幕墙的参数化生成程序,输入密度,进深等控制参数即可生成构件。同时将面积、厚度以及对应的用钢量等指标存储在数据库当中,实时输出反馈给相关专业以及业主,为比较不同设计方案的造价变化提供了快速准确的依据。形体生成规则以参数化方法描述,例如钢格栅以密度、进深、角度等参数进行控制。生成过程编写为程序,在设计周期很短的情况下,对比了十种以上不同可能,很短时间即可完成方案模型的重建。

5 钢格栅的参数化建模

6方案对比研究

易于调节的构造节点

曲面钢板幕墙是由多个小的平面单元拼接而成,初期方案担心安装精度难以保证,将幕墙单元拼接设计为明缝。这一设计需要在钢板背面增加防水层,构造复杂,造价难以承受。因此将幕墙拼缝改为焊接密封,焊缝允许的最大宽度有限,且幕墙单元数量较多,精度要求较高。幕墙节点设计进行了不同方案的试样对比研究,最终采取在每一幕墙单元设可调节的定位钢片进行初步定位,待整片幕墙对缝确认完毕后再焊接固定的方法。实际应用的效果简便易行,安装快速。

顺应加工工艺的表面肌理

幕墙全尺寸试样焊接完毕后,焊缝的处理成为一个难题。预想的处理方法是焊接完成后逐一打磨,由于焊缝的数量大,打磨费工费时。通过试样发现,打磨用的砂轮在焊缝周边留下明显的痕迹,表面喷涂后痕迹更为明显。如果保留焊缝,整体效果十分粗糙。是否打磨焊缝成为一个两难的设计问题。正当设计陷入困境时,走访加工单位发现用于加工钢板的折弯机,可以精确地按照预定角度将钢板折弯。我们因此提出将三角形幕墙单元两两组合为四边形单元,对角线用折弯机加工,仅焊接四边的工艺。这一方法大幅减少了焊接量。折弯的压痕形成精细的转折线条,与周边粗犷的焊缝形成对比。幕墙整体形成了对角线与四边形两个方向网格交织的特殊肌理,在不同光线下产生微妙的光影变化。

8 幕墙肌理

(摄影:姚力)


建筑——结构一体的参数化设计

曲面钢格栅在总体用钢量当中占很大比重,在主体结构难以压缩的条件下,压缩曲面格栅的用钢量成为控制造价的关键。钢格栅从建筑效果考虑希望尽可能薄,同时有大的进深。太薄结构强度不满足,进深增大直接增加造价。如何决定最佳格栅参数,仅从建筑效果角度考虑难以决定。此时结构设计提出了一套参数化结构计算模型,将几何尺寸变化对结构的关联关系以多条曲面表达,曲线上每一点的对应参数均可满足结构设计要求。在这一技术的辅助下,结合造价统计程序,建筑师迅速准确的选定了造价范围内的最佳几何尺寸参数。


9 结构参数化设计

(图片来源:ARUP奥雅纳工程咨询(上海)有限公司)

10 结构—表皮三维模型

(图片来源:李辉)

BIM建筑信息模型

复杂形体的实现,首先是设计信息的全面准确表达。施工图阶段建筑、结构、幕墙各工种的配合以及项目实施过程中出现的设计问题反馈,利用BIM设计平台的图纸表现与信息综合能力,准确高效。同时我们也发现,BIM模型可以进行高效信息输出与整合,背后的控制思想与参数化方法有类似之处。如果信息输入的接口更为开放,将形体生成过程中的设定参数与BIM模型的控制参数对接,实现建模软件平台与BIM平台的整合,参数化设计的能力将更为强大。

11 BIM模型

(图片来源:李辉)


万科集团创展中心的设计建造,在几何形态方面的探索仅仅是一个方面,如何在低造价前提下实现非标准曲面建筑的建造是设计的核心意图。这一过程中相关设计技术的研发与应用则是意料之外的收获。



(注:未注明的图片均为本文作者绘制。建筑摄影:姚力)


作者简介:

钟华颖,南京大学建筑与城市规划学院讲师,南京大学建筑规划设计研究院有限公司数字建筑工作室主持建筑师。博士毕业于东南大学建筑学院。研究领域数字建筑设计。

DADA数字建筑设计专业委员会是隶属于中国建筑学会建筑师分会的学术机构,DADA的宗旨是联合国内建筑行业中从事数字建筑的建筑师、学者、及相关企事业单位和学术团体,开展国内及国际化数字建筑设计的广泛学术交流,促进数字建筑的研究和实践,推动数字建筑知识及技术的迅速普及;同时积极引导建筑行业内从事设计、生产,到施工、管理等不同领域之间的沟通与衔接,为整个建筑行业整合升级、形成可持续发展的新型产业链做出应有贡献。



欢迎关注DADA官方微博:


http://weibo.com/dadaszw


 
 
主办:中国建筑学会建筑师分会数字建筑设计专业委员会
承办:清华大学建筑学院
地址:北京市海淀区清华大学建筑学院南212室(邮编:100084)
电话:010-62794175,62784519,13601018978

欢迎关注DADA官方微信公众平台
会员信息
  输入用户名登录
用户名:
密码:
  没有用户名?点击立即注册